Dezavo International

Build Your Dreams into Reality
Build Your Dreams into Reality

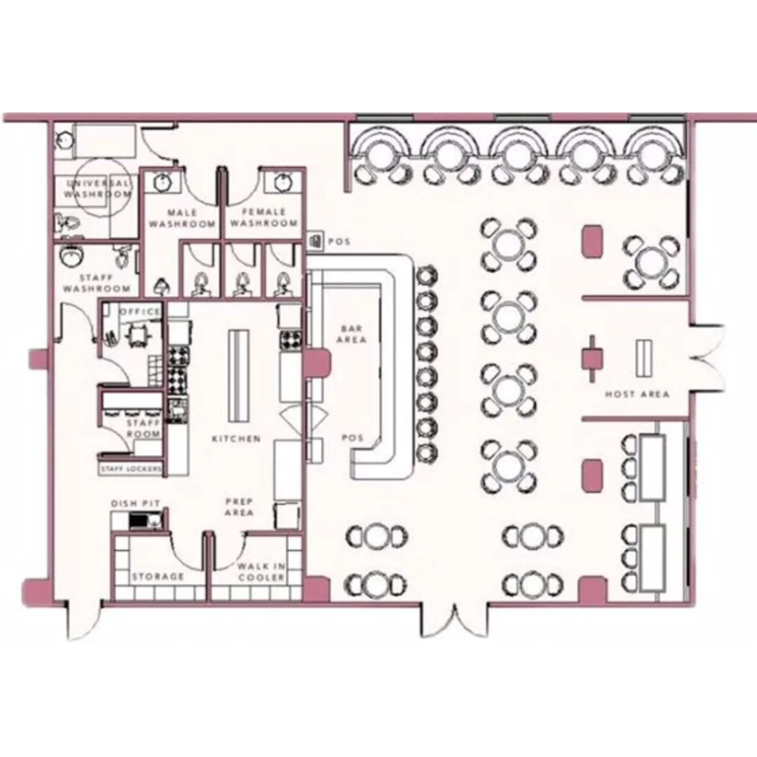
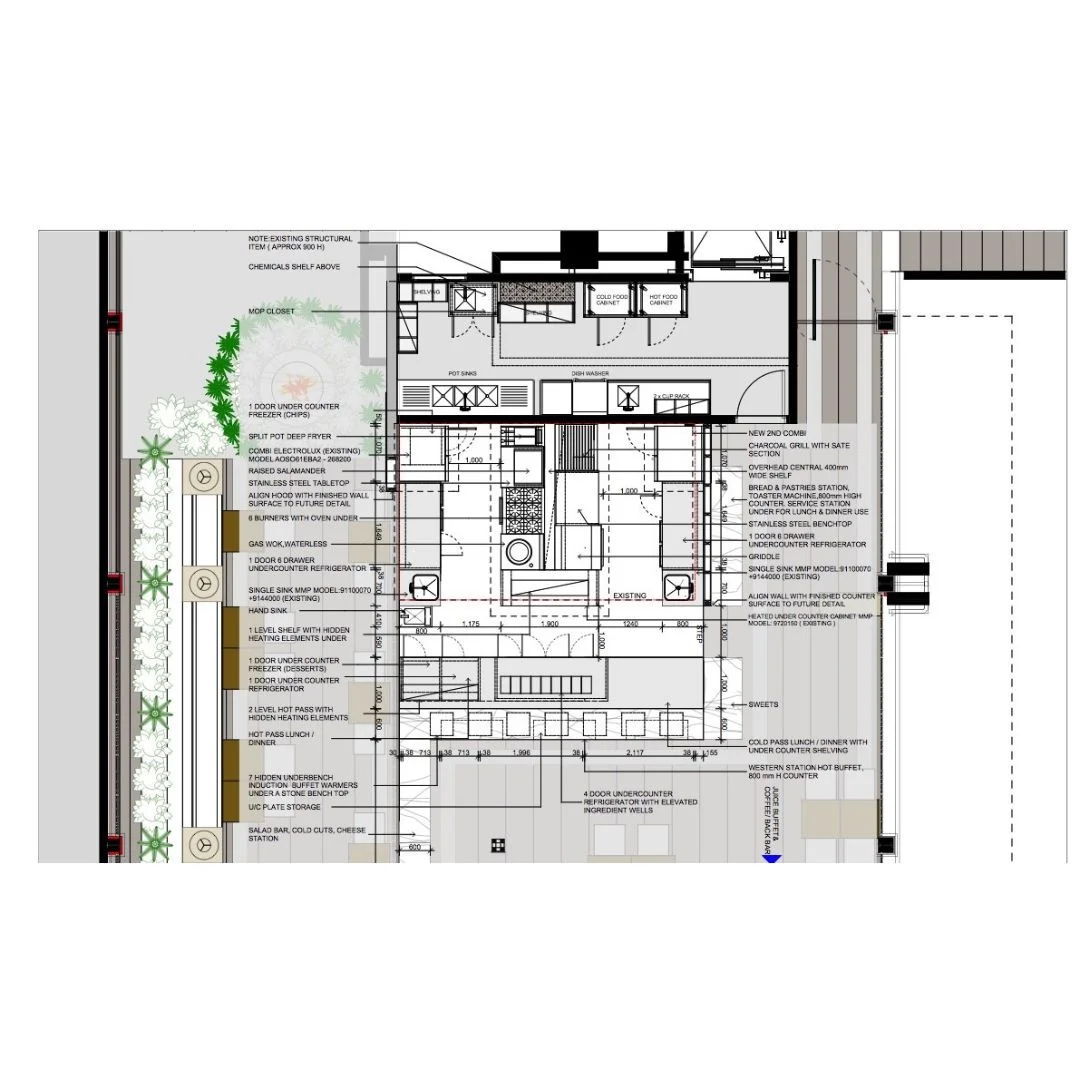
Project Development

  • Site assessment
  • Building design
  • Interior design incl. layout and workflows
  • Construction, renovation & refurbishment management
  • Kitchen design, layout and workflow
  • FF&E procurement advice
  • OS&E procurement advice
  • Other related procurement (lighting, decorations, uniforms, landscaping)

 

PT. Dezavo HoReKa Internasional 2024